Mehr anzeigen zum Thema Beschreibung
Beschreibung
Willkommen zu einem einzigartigen Investitionsangebot in Hagenow – ein gepflegtes Wohn- und Geschäftshaus mit einer langen Geschichte und vielseitigen Nutzungsmöglichkeiten. Dieses eindrucksvolle Gebäude, ursprünglich 1910 als Zwei-Familienhaus erbaut und 1993 umfassend saniert und zu einem Bürohaus umgebaut, bietet alle Voraussetzungen, um Ihren geschäftlichen oder privaten Plänen eine neue Heimat zu geben.
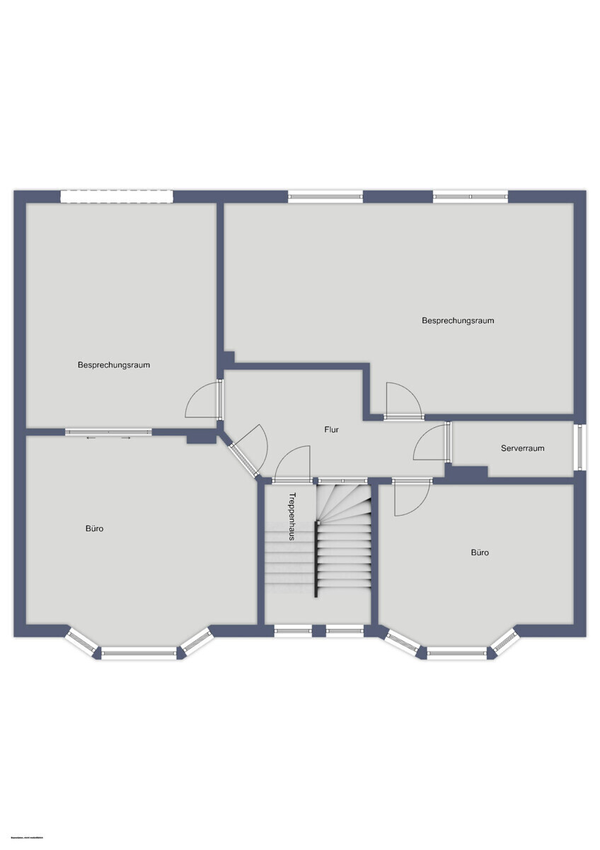
Das Anwesen besticht durch seine großzügige Grundstücksgröße von ca. 1.040 m² und umfasst eine Wohnfläche von ca. 260 m² sowie eine Nutzfläche von ca. 95 m². Die neun hellen und geräumigen Zimmer bieten eine exzellente Basis für eine Vielzahl von Geschäftsbereichen wie Steuerberatungen, Anwaltskanzleien, Notariate, Versicherungsbüros usw.. Durch die vorhandenen Versorgungsleitungen ist auch ein Rückbau zu Wohneinheiten möglich, sodass eine Kombination von Wohnen und Arbeiten realisierbar ist.
Der beheizte Keller eignet sich hervorragend als Archiv oder für zusätzliche Nutzflächen. Zudem stehen reichlich Parkplätze für Kunden und Mitarbeiter zur Verfügung, was den alltäglichen Betrieb vereinfacht und den Komfort für Besucher und Angestellte maximiert.
Dieses Objekt ist ab sofort verfügbar und bietet eine seltene Gelegenheit auf dem Markt. Nutzen Sie das Potenzial dieser vielseitigen Immobilie und gestalten Sie sie nach Ihren Vorstellungen – ob als Geschäftszentrum oder als kombinierte Wohn- und Arbeitsstätte. Kontaktieren Sie uns für weitere Informationen oder um einen Besichtigungstermin zu vereinbaren.
Das Anwesen besticht durch seine großzügige Grundstücksgröße von ca. 1.040 m² und umfasst eine Wohnfläche von ca. 260 m² sowie eine Nutzfläche von ca. 95 m². Die neun hellen und geräumigen Zimmer bieten eine exzellente Basis für eine Vielzahl von Geschäftsbereichen wie Steuerberatungen, Anwaltskanzleien, Notariate, Versicherungsbüros usw.. Durch die vorhandenen Versorgungsleitungen ist auch ein Rückbau zu Wohneinheiten möglich, sodass eine Kombination von Wohnen und Arbeiten realisierbar ist.
Der beheizte Keller eignet sich hervorragend als Archiv oder für zusätzliche Nutzflächen. Zudem stehen reichlich Parkplätze für Kunden und Mitarbeiter zur Verfügung, was den alltäglichen Betrieb vereinfacht und den Komfort für Besucher und Angestellte maximiert.
Dieses Objekt ist ab sofort verfügbar und bietet eine seltene Gelegenheit auf dem Markt. Nutzen Sie das Potenzial dieser vielseitigen Immobilie und gestalten Sie sie nach Ihren Vorstellungen – ob als Geschäftszentrum oder als kombinierte Wohn- und Arbeitsstätte. Kontaktieren Sie uns für weitere Informationen oder um einen Besichtigungstermin zu vereinbaren.
Mehr anzeigen zum Thema Lage
Lage
Dieses bemerkenswerte Wohn- und Geschäftshaus befindet sich in einer zentralen Lage der Stadt Hagenow im malerischen Mecklenburg-Vorpommern, Deutschland.
Die Immobilie profitiert von ihrer hervorragenden Anbindung an die nahe gelegenen Autobahnen, die eine schnelle und bequeme Erreichbarkeit der umliegenden Städte und Regionen ermöglichen.
Eine Fülle von Parkmöglichkeiten in der Umgebung macht diese Lage besonders attraktiv für Kunden und Besucher gleichermaßen. Die pulsierende Umgebung bietet eine ideale Mischung aus städtischem Komfort und ländlicher Ruhe, wodurch sowohl Geschäfts- als auch Privatleben harmonisch vereint werden können.
Die Nähe zu zahlreichen Annehmlichkeiten und grünen Erholungsflächen unterstreicht die Attraktivität dieser einzigartigen Immobilie. Entdecken Sie das Leben im Herzen von Hagenow!
Die Immobilie profitiert von ihrer hervorragenden Anbindung an die nahe gelegenen Autobahnen, die eine schnelle und bequeme Erreichbarkeit der umliegenden Städte und Regionen ermöglichen.
Eine Fülle von Parkmöglichkeiten in der Umgebung macht diese Lage besonders attraktiv für Kunden und Besucher gleichermaßen. Die pulsierende Umgebung bietet eine ideale Mischung aus städtischem Komfort und ländlicher Ruhe, wodurch sowohl Geschäfts- als auch Privatleben harmonisch vereint werden können.
Die Nähe zu zahlreichen Annehmlichkeiten und grünen Erholungsflächen unterstreicht die Attraktivität dieser einzigartigen Immobilie. Entdecken Sie das Leben im Herzen von Hagenow!
Mehr anzeigen zum Thema Sonstige Angaben
Sonstige Angaben
Da wir im Interesse unserer Auftraggeber handeln, die uns Ihre Immobilie anvertrauen, bitten wir Sie, uns Ihre vollständige Anschrift und Telefonnummer mitzuteilen. Wir bedanken uns für Ihr Verständnis.
Mit der Baufinanzierung der VR PLUS Altmark-Wendland eG steht Ihr Vorhaben auf sicheren Beinen. Von der Erstfinanzierung über die Anschlussfinanzierung bis zur Modernisierung begleitet Sie die VR PLUS Altmark-Wendland eG in die eigenen vier Wände .
Die VR PLUS Altmark-Wendland eG steht Ihnen ebenfalls weiter als verlässlicher Partner u.a. für die Bereiche: Baustoffe, Heizöl, Holzpellets, Haus- u. Gartenmärkte sowie dem Schutz Ihres Hab und Gutes mit unseren VRsicherungen mit Rat und Tat zur Seite.
Ihre Anfragen werden automatisch beantwortet. Darum möchten wir Sie bitten, uns telefonisch oder direkt per E-Mail zu kontaktieren, wenn Sie einen Besichtigungstermin vereinbaren wollen.
Diese Offerte ist freibleibend. Irrtum, Zwischenverkauf und Preisänderungen bleiben ausdrücklich vorbehalten. Kommt durch unsere Vermittlung ein Kaufvertrag zustande, so ist die oben genannte Provision zu zahlen.
Mit der Baufinanzierung der VR PLUS Altmark-Wendland eG steht Ihr Vorhaben auf sicheren Beinen. Von der Erstfinanzierung über die Anschlussfinanzierung bis zur Modernisierung begleitet Sie die VR PLUS Altmark-Wendland eG in die eigenen vier Wände .
Die VR PLUS Altmark-Wendland eG steht Ihnen ebenfalls weiter als verlässlicher Partner u.a. für die Bereiche: Baustoffe, Heizöl, Holzpellets, Haus- u. Gartenmärkte sowie dem Schutz Ihres Hab und Gutes mit unseren VRsicherungen mit Rat und Tat zur Seite.
Ihre Anfragen werden automatisch beantwortet. Darum möchten wir Sie bitten, uns telefonisch oder direkt per E-Mail zu kontaktieren, wenn Sie einen Besichtigungstermin vereinbaren wollen.
Diese Offerte ist freibleibend. Irrtum, Zwischenverkauf und Preisänderungen bleiben ausdrücklich vorbehalten. Kommt durch unsere Vermittlung ein Kaufvertrag zustande, so ist die oben genannte Provision zu zahlen.
Mehr anzeigen zum Thema Sonstige Angaben
Energieausweis
A+
< 30
A
30 - 50
B
50 - 75
C
75 - 100
D
100 - 130
E
130 - 160
F
160 - 200
G
200 - 250
H
> 250
- Nutzungsart
- Anlage
- Baujahr lt. Ausweis
- 1910
- Energieausweis
- Verbrauchsausweis Gewerbe
- Effizienzklasse
- E
- wesentlicher Energieträger
- Gas
- Endenergieverbrauch
- 130,7 kWh/(m²a)
- gültig bis
- 16.12.2035
- Endenergieverbrauch (Wärme)
- 130,7 kWh/(m²a)
- Endenergieverbrauch (Strom)
- 23,3 kWh/(m²a)
Videos
Links
Ihre Ansprechpartnerin
Frau Sindy Albien
VR PLUS Altmark-Wendland eG
- E-Mail:
- sindy.albien@vr-plus-immo.de
- Tel.:
- 0151 28524058
- Mobile:
- 0151 28524058
Karl-Marx-Platz 4a
19294 Eldena